Kontakt
Aktuelles
Jobs

Projekt ALVA

Traditionelle Zimmermannskunst, zeitgemässe Architektur

Grosszügige Fensterfronten holen viel Licht und die Natur direkt ins Haus. ALVA vereint modernes Wohnen mit traditioneller Handwerkskunst in Holz.

Das Haus überzeugt mit seiner klaren Formensprache und einer durchdachten Raumstruktur. Gefertigt in hochwertiger Holzbauweise aus eigener Produktion, steht ALVA für ein nachhaltiges Wohnkonzept mit natürlichem Charme und zeitgemässem Komfort. 

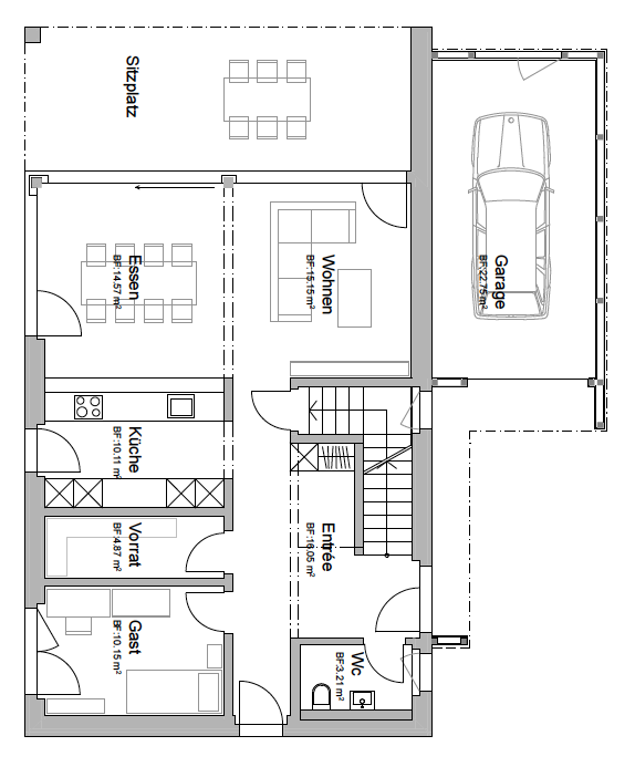
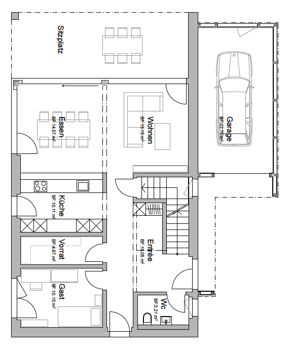
Der kompakte Hauptbaukörper wird auf der einen Seite durch eine direkt angeschlossene Garage ergänzt, auf der anderen Seite erweitert ein überdachter Sitzplatz den Wohnraum ins Freie. Diese architektonische Anordnung schafft eine harmonische Verbindung von Innen und Aussen – und ermöglicht im Innern eine funktionale und gleichzeitig behagliche Raumaufteilung.

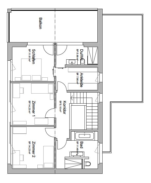
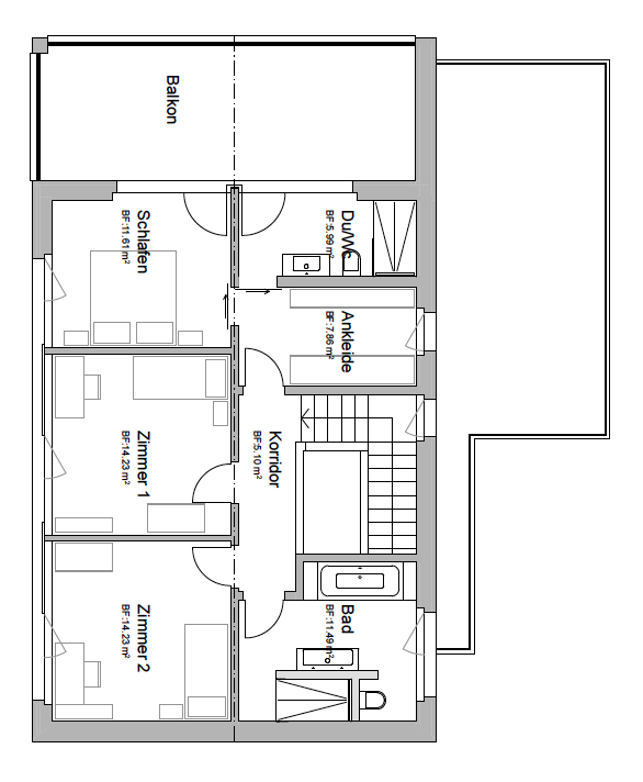
Im Erdgeschoss führt das Entrée mit integrierter Garderobe vorbei am Gästezimmer und einem separaten WC in den offen gestalteten Wohn-, Ess- und Küchenbereich. Helle Holzoberflächen, ein durchdachtes Lichtkonzept und die praktische Anbindung an den Vorratsraum sorgen für eine warme, einladende Atmosphäre. Im Obergeschoss wird es privater: Zwei gleich grosse Zimmer sowie das Elternschlafzimmer mit eigener Ankleide bieten viel Rückzugsraum. Ergänzt wird das Raumangebot durch zwei komfortable Badezimmer sowie einen grossen Balkon – alles im Zeichen von Holz, Qualität und Wohnlichkeit.

Mehr Details?

Hat Sie dieses Hausprojekt begeistert? 
Dann zeigen wir Ihnen gerne mehr davon.

Rufen Sie uns einfach an oder schreiben Sie uns gleich hier, welche Hausideen oder Details Sie sich in Ihrem neuen Eigenheim vorstellen könnten.

Wir beraten Sie gerne!

Auf einen Blick

  • Zeitgemässe, klare Architektur
  • Hochwertige Holzkonstruktion aus eigener Produktion
  • 5 ½ Zimmer Einfamilienhaus mit integrierter Garage
  • Zwei offen gestaltete Wohngeschosse mit funktionaler Raumaufteilung
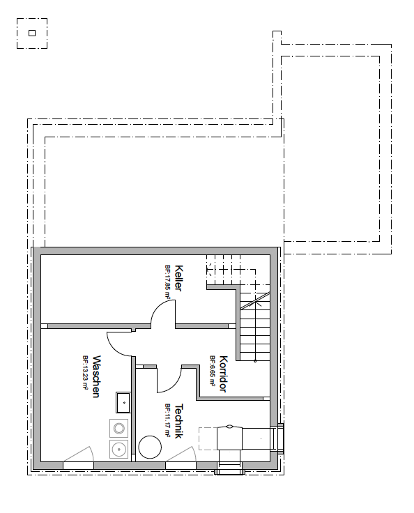
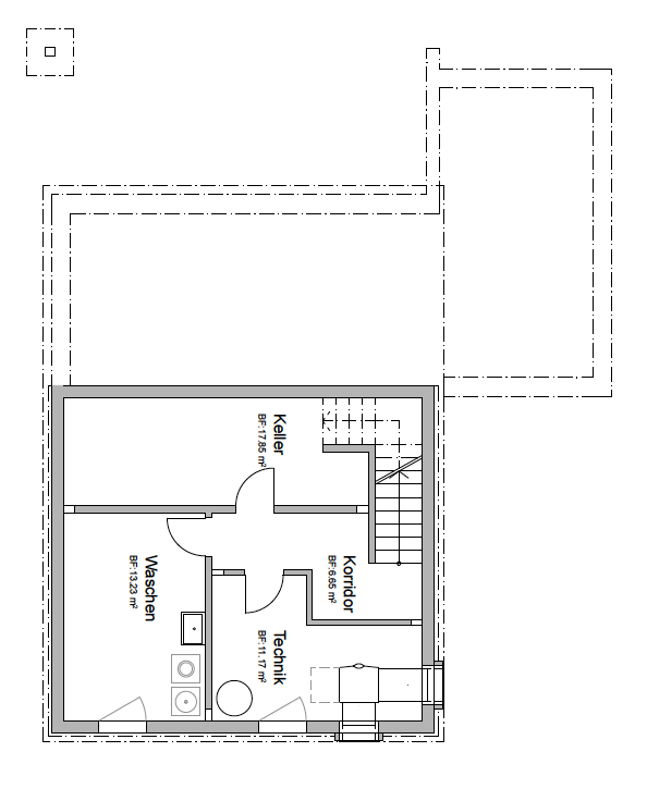
  • Teilunterkellerung mit allen notwendigen Nebenräumen
  • Offener Wohnbereich mit Küche, Essen und Vorratsraum
  • Grosse Fensterfronten mit Weitblick
  • Zwei Badezimmer und grosser Balkon im Obergeschoss
Untergeschoss
Untergeschoss
Erdgeschoss
Erdgeschoss
Obergeschoss
Obergeschoss

Kontakt

Wir freuen uns über Ihre Kontaktaufnahme und beantworten Ihnen gerne alle Fragen zu unserem breitgefächerten Angebot. Natürlich stehen wir Ihnen gerne für ein persönliches Gespräch zur Verfügung.



TELEFON: 071 775 85 85
Montag – Donnerstag 7.30–12.00 Uhr und 13.00–17.00 Uhr, Freitag 7.30–12.00 Uhr und 13.00–16.00 Uhr

Persönliche Informationen

Ihr Anliegen